Floor Plans for Santa Cruz Eclectic

The house is designed for efficient use of materials with all floor  joists and roof rafters
the same size material. Attention was put into the design to provide easy building using
simple gables and tie-ins. Although a low slope roof could be used to reduce the cost,
this house used steep roofs to add a "rich" look.

 

FIRST FLOOR FLOOR PLAN 

This house is only about 2000 sq. ft. yet feels very spacious without a  lot of wasted space.
The full bath downstairs is a nice feature.The kitchen has plenty of work space for  several cooks and the whole downstairs works wonderful for large gatherings. The step down  living room with  a 22' open beam ceiling and lots of windows is breathtaking. There  is an interesting "little" kids room that was created in the space below the  stairway landing. It is less than 5 feet tall yet is perfect for children and provides a  place to put a lot of toys without cluttering up the room. A piece of stained glass  between the Den and the Kitchen adds openness and character.

Flrplanhs.gif (16877 bytes)

 

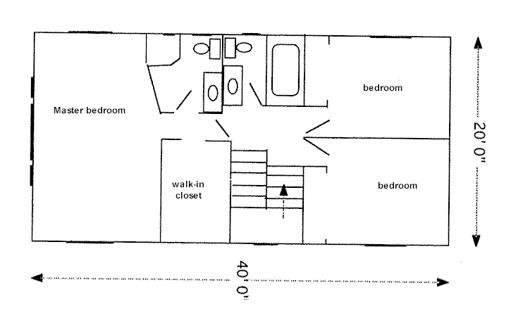
SECOND FLOOR FLOOR PLAN

The Second floor is compact with no wasted space yet also feels very  spacious. The 2 bedrooms are small but more than adequate for most non adults. Both  bathrooms have 9'ceilings. The walk-in closet works well and the master bath has an open  shower that feels comfortable while not expansive. The master bedroom is large enough with  many alternate bed locations with a tall ceiling and arched window that provides lots of  character. The little bit of hall has a peaked ceiling that was economical but adds to the  custom feel. Notice the way the bathroom ,closet and entry door are within the small hall  which provides for a cleaner less cluttered bedroom. This house with its 12 and 12 roof  has plenty of expansion space in the attic

2ndflrhs.gif (12649 bytes)

GARAGE SECOND FLOOR APARTMENT

Above the garage is a 1 bedroom apartment that is great for guests, a  rental,or a live in.
It has a full bath and kitchen w/ a loft above for plenty of storage or sleeping. Interior
windows keeps it light and open.

2ndflrgarag.gif (8297 bytes)

 


If your interested in building this house please contact me by E-mail. The Plans include floor plans, elevations, framing, foundation and specs. Also available is the engineering data. This house was built to withstand major earthquakes. As of this writing a set of reproducible plans are $700. Engineering is an additional $100 and can only be used for reference. All locations , requirements and soils are different thus no guarantee can be given as to the ability to apply  structural engineering specifications to other locations.


If you would like to contact Coastline please submit a project for review or  e-mail your name and number to info@coastlinednc.com or call 831-335-0950
© 2000 Coastline Design & Construction